主な販売済み物件

 

済み

 

 高槻市大野ビル 自宅+収益使用に最適


種 別
一棟売り収益ビル

価 格

4,480万円

最寄駅
阪急「高槻」
徒歩13分
間 取
1F:事業スペース
2F:3LDK1室
3F:ワンルーム2室
所在地
高槻市八幡町
構 造

鉄骨造3階建

詳細資料

高槻大野ビル

★住宅街に立地
★医院、店舗、学習塾、オフィス他 多用途可能

 

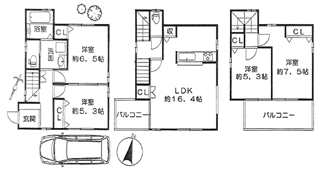
 芦屋市南宮町 戸建住宅


種 別
新築戸建

価 格

4,495万円

最寄駅
阪神「打出」駅より徒歩5分
間 取
4LDK
所在地
芦屋市南宮町2丁目
構 造
3階建

物件資料

詳細資料

南向き3F建て、駐車スペース1.5台分有り、リビングは広々19.5帖、建物仕様Aランク


 

 グランパレ兵庫 603号室

種 別
中古マンション

価 格

1,200万円

最寄駅
JR「兵庫」駅より徒歩3分
間 取
2LDK
所在地
神戸市兵庫区塚本通6丁目
構 造
鉄筋コンクリート造7階建

詳細資料

オートロック、ジェットバス
校区:兵庫大開小学校、兵庫中学校


 

 アビタ西山町 A号

資料

資料
左がA号、右がB号(B号成約済み


種 別
新築一戸建
価 格
2,980万円
最寄駅
高速長田
より徒歩約13分
間 取
4LDK
所在地
長田区西山町2丁目36-2
構 造
木造3階建

間取図 【物件詳細を別 ウィンドウで開く

間取図

 

絶賛販売中です!

 

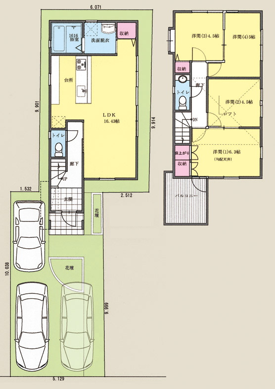
 アビタ魚崎南町

済み

  魚崎南町売地   


種 別
売土地

参 考価 格

土地/1800万円
建物/1890万円

最寄駅
阪神「魚崎」
より徒歩約11分
間 取
4LDK
所在地
東灘区魚崎南町2丁目
構 造
木造3階建

済み

間取図(例) 【クリックで拡大します 】

プランA(2階建)プランB(2階建)

プランA 


 


 

 アビタ西山町 B号

種 別
新築一戸建
価 格
3,380万円
最寄駅
高速長田
より徒歩約13分
間 取
4LDK
所在地
長田区西山町2丁目36-4
構 造
木造3階建

間取図 【物件詳細を別 ウィンドウで開く

済み


 



 

 アビタ住吉宮町 A号/B号

種 別
新築一戸建
価 格
29,80万円/32,80万円
最寄駅
JR住吉駅より徒歩約7分
阪神住吉駅より徒歩約4分
間 取
4LDK/5LDK
所在地
東灘区住吉宮町2丁目11
構 造
木造3階建

 

済み

 

 アビタ琴浦町 C号

種 別
新築一戸建
価 格
3280万円
最寄駅
阪神尼崎センタープール駅
より徒歩約9分
間 取
4LDK
所在地
尼崎市琴浦町
構 造
木造3階建

 

済み

 【メニューページにもどる】  


 

サイトー不動産株式会社